5 Tamma Court, Heathridge
Details
-
Type
Overview
Sneak Peek! Now You See It….
The only house on a full block available in Heathridge!
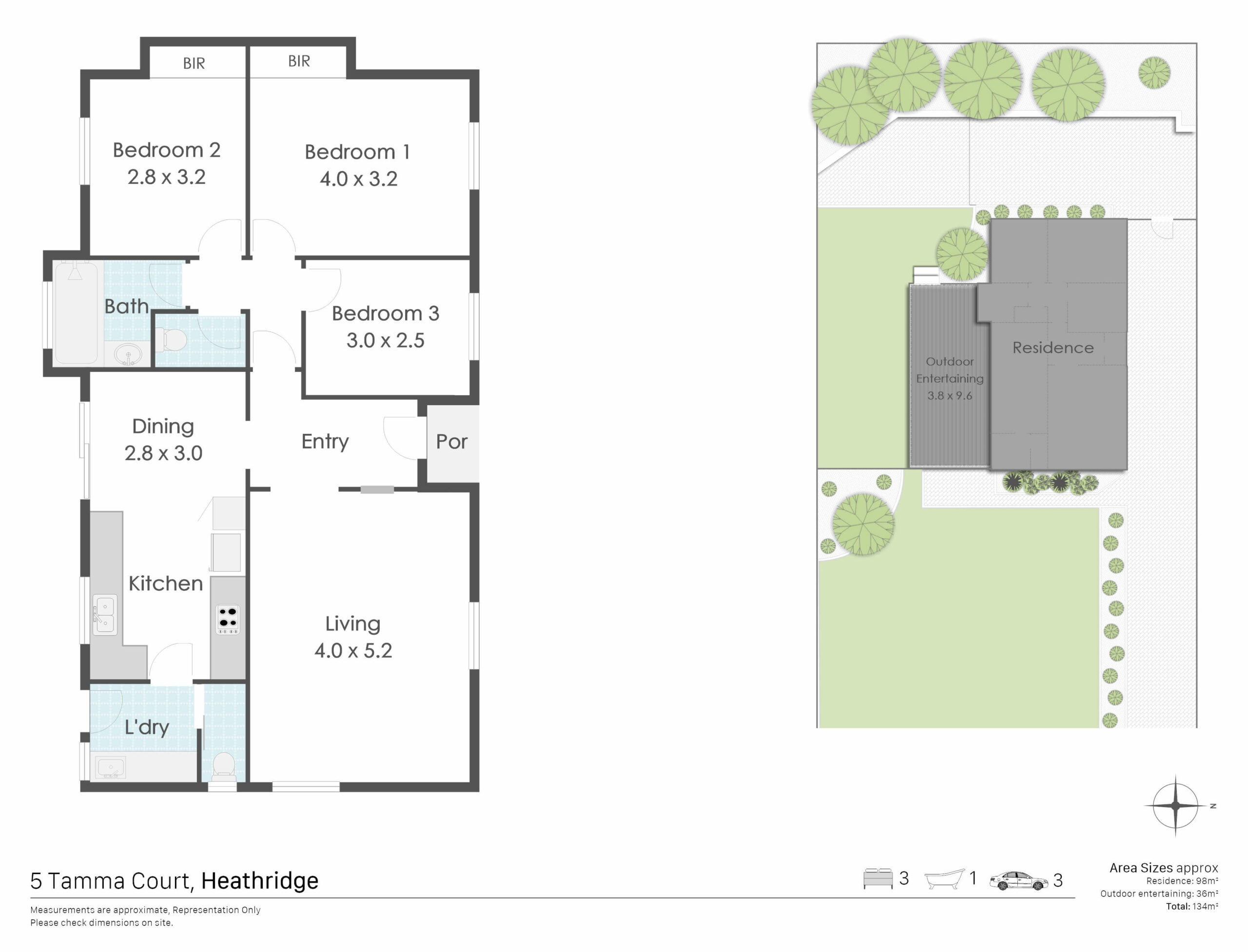
Great elevated rectangular 683 sqm block, with a neat Retro brick and tile home perched on top.
Lots of options here.
This home is ready to move straight in as your starter home.
This property has masses of potential and space to extend.,
This place would be great to put tenants in while you finalise the perfect plans for your dream home OR
A low maintenance investment to set and forget.
So run, don’t walk, to find out more. This will be sold before you know it. Email me to register your interest today!
Details
-
Lot dimensions:3x1x3
-
Type:
Mortgage Calculator
$70,000
/
Monthly
- Principal & Interest
- Property Tax
- Home Insurance


